- Woonoppervlakte
- Circa 117 m²
- Perceeloppervlakte
- Circa 273 m²
- Bouwjaar
- Gebouwd in 1927
- Aantal kamers
- 4 kamers (3 slaapkamers)
Op een ideale plek tussen de Universiteit Twente en de levendige binnenstad van Enschede staat deze charmante en uitstekend onderhouden woning uit 1927. Wie hier binnenstapt, voelt direct dat dit geen doorsnee jaren ’20-woning is: dankzij de zorg, aandacht en investeringen van de huidige eigenaren beschikt het huis over energielabel A. Een mooi voordeel voor wie de sfeer van vroeger wil combineren met het comfort van nu. Daarnaast beschikt de woning over een volledig ingerichte en geïsoleerde kapsalon aan huis, ideaal voor wie een praktijk aan huis wil voeren of thuis wil ondernemen met behoud van privacy en professionaliteit.
Sfeervol wonen met open indeling
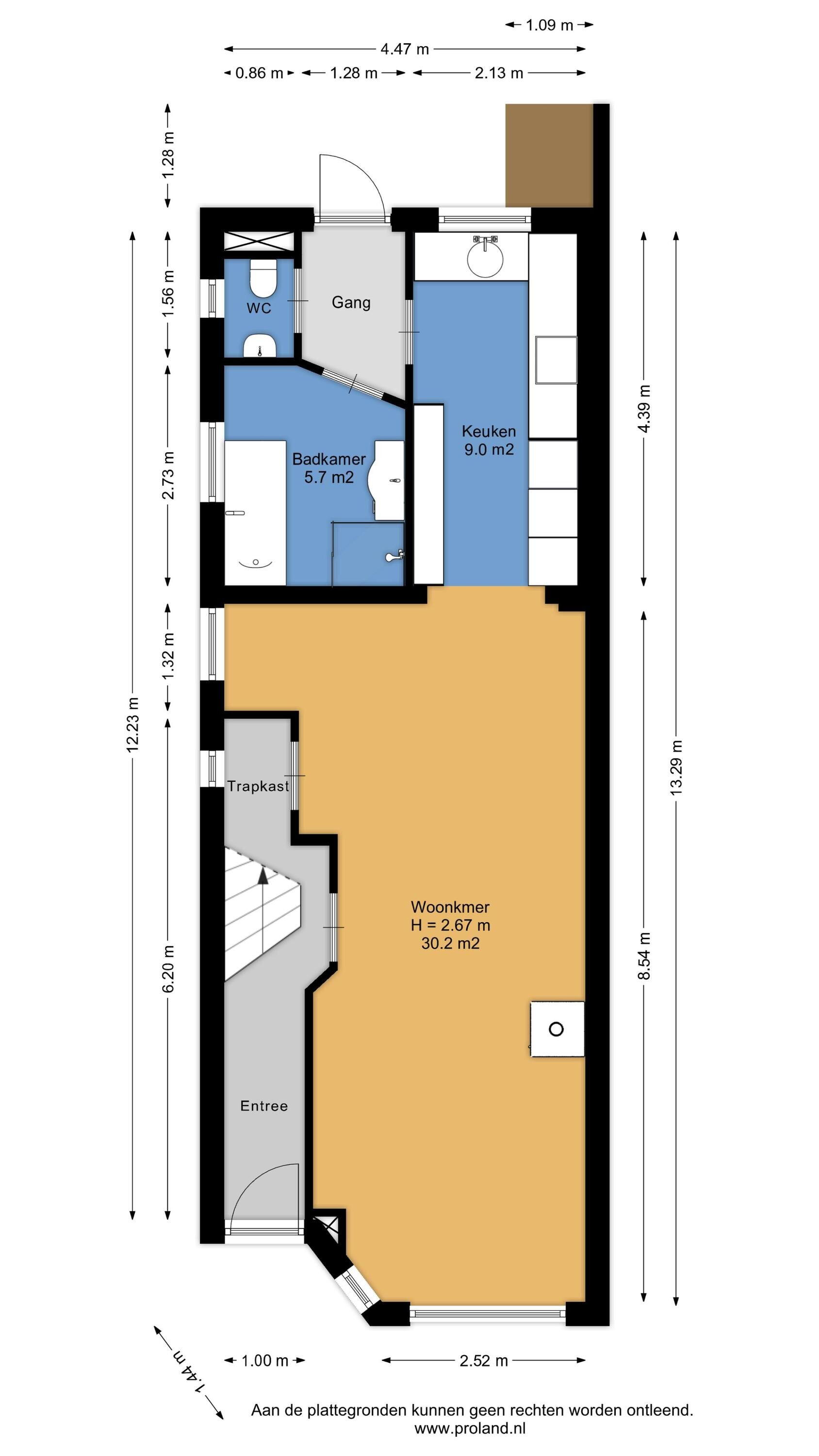
De begane grond voelt extra ruim dankzij de open verbinding tussen de woonkamer en de keuken. Het vele licht en de fijne flow maken het een heerlijk gezinshuis waar dagelijks wordt geleefd, met als bonus de sfeervolle open haard. Verder vind je op de begane grond de ruime badkamer met zowel een ligbad als een douche, gevolgd door een aparte gastentoilet.
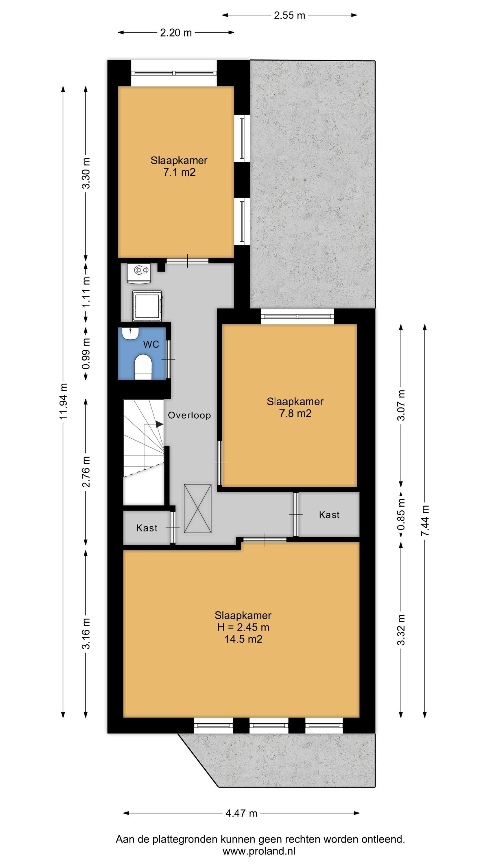
Op de eerste verdieping liggen drie slaapkamers. Dankzij de uitbouw in 2007 zijn er drie slaapkamers gecreëerd en is er meer ruimte ontstaan, waar onder andere het witgoed staat. Aan de voorzijde bevindt zich de master bedroom en aan de achterzijde twee keurig afgewerkte kinderslaapkamers. Tot slot is er nog een praktische bergzolder voor al je extra opbergruimte.
Thuiswerken? Ondernemen? Dit huis maakt het mogelijk!
In 2015 is in het bijgebouw een volledig geïsoleerde kapsalon gerealiseerd, compleet met eigen cv-ketel, airco, wastafel en twee kappersstoelen. Klanten kunnen via de poort naast de woning naar binnen, zonder door het woonhuis te hoeven lopen. Of je nu kapper bent, een andere praktijk aan huis wilt voeren of simpelweg een luxe werkplek zoekt: dit bijgebouw biedt een zeldzame combinatie van privacy, ruimte en professionaliteit.
Achter de woning ligt een diepe tuin van maar liefst 115 m²: een buitenruimte om trots op te zijn. Hier geniet je van lange zomeravonden onder de schitterende overkapping en zorgt de vijver voor een prettige, natuurlijke sfeer. De twee praktische bergingen bieden alle ruimte voor fietsen, tuingereedschap of buitenspeelgoed, en dankzij het grote grasveld is er volop plek voor kinderen om veilig en vrij te spelen. Kortom: een fijne tuin waar je elke dag iets aan hebt.
Met moderne installaties, volop isolatie w.o. spouwmuur en Tonzon vloer isolatie, kunststof kozijnen en voordeur met HR++ isolerend glas, 24 zonnepanelen, meerdere airco’s, recent schilderwerk en een uitstekend onderhouden dak hoef je hier de komende jaren weinig meer aan te doen. Dit is zo’n woning die in alle opzichten voelt als ‘af’.
We nodigen je van harte uit om deze fijne woning zelf te komen ervaren.
Graag tot ziens aan de G.J. van Heekstraat 342 in Enschede.
Overdracht
- Vraagprijs
- € 365.000 k.k.
- Status
- Verkocht onder voorbehoud
- Aanvaarding
- In overleg
Bouw
- Object type
- Eengezinswoning, 2 onder 1 kapwoning
- Soort bouw
- Bestaande bouw
- Bouwjaar
- 1927
- Soort dak
- Tentdak bedekt met pannen
Oppervlakte en inhoud
- Woonoppervlakte
- 117 m²
- Perceeloppervlakte
- 273 m²
- Inhoud
- 454 m³
- Externe bergruimte
- 25 m²
- Gebouwgeb. buitenruimte
- 2 m²
Indeling
- Aantal kamers
- 4 kamers (3 slaapkamers)
- Aantal badkamers
- 1 badkamer
- Badkamervoorzieningen
- Ligbad, douche, wastafel, wastafelmeubel
- Aantal woonlagen
- 3 woonlagen
- Voorzieningen
- Glasvezel kabel, zonnepanelen
Energie
- Energielabel
- A
- Energielabel registratie
- 30-09-2025
- Isolatie
- Dakisolatie, muurisolatie, vloerisolatie, hr glas
- Verwarming
- Cv-ketel
- Warm water
- Cv-ketel, zonnecollectoren
- Cv ketel
- Remeha avanta ace 35c combiketel gas gestookt uit 2024 (eigendom)
Buitenruimte
- Ligging
- In woonwijk
- Tuin
- Achtertuin
- Afmetingen achtertuin
- 115 m² (19 meter diep en 6.03 meter breed)
- ligging tuin
- Gelegen op het noorden en bereikbaar via achterom
Bergruimte
- Schuur / berging
- Vrijstaand steen
- Voorzieningen
- Voorzien van elektra, voorzien van water
Garage
- Soort garage
- Geen garage
Parkeergelegenheid
- Soort parkeergelegenheid
- Openbaar parkeren
Energieverbruik in Enschede
Energielabel deze woning
Energielabel A
Publicatie energielabel: 30-09-2025
Stroomverbruik per jaar
(Gemiddelde twee onder een kap in Enschede)
Gasverbruik per jaar
(Gemiddelde twee onder een kap in Enschede)
* Cijfers zijn afkomstig van het CBS en bedoeld als indicatie en kunnen verschillen voor deze woning
Indicatie hypotheeklasten
Eigen inleg:
Spaargeld / overwaarde
Rente:
Laagste 10-jaars rente
Laagste 10-jaars rente
2,78% - Centraal Beheer Groen... - NHG
3,04% - Centraal Beheer Groen... - 80%
Laagste 20-jaars rente
3,29% - Centraal Beheer Groen... - NHG
3,52% - Centraal Beheer Groen... - 80%
Laagste 30-jaars rente
3,41% - Centraal Beheer Groen... - NHG
3,7% - Argenta Groen Hypotheek... - 80%
Hypotheek:
Bruto maandlasten: € 0 p/m
Netto maandlasten: € 0 p/m
Hoe berekenen we dit?
Het rentepercentage is gebaseerd op de laagste 10 jaars vaste rente voor één hypotheekdeel. De vermelde rente (2.78% met NHG) is gecontroleerd op 18-02-2026. Deze berekening is gebaseerd op een annuïteitenhypotheek die volledig wordt afgelost, waarbij de maandlasten gedurende de gehele looptijd gelijk blijven. De werkelijke rente en netto maandlasten kunnen variëren, afhankelijk van uw persoonlijke situatie en de hypotheekverstrekker. Raadpleeg een financieel adviseur voor een nauwkeurige berekening en advies. Aan deze berekening kunnen geen rechten worden ontleend; het dient enkel als indicatie.
Documentatie
Kadastrale kaart
Leefomgeving
Plattegronden PDF
WOZ waarderapport
BAG uittreksel
Brochure
Bezoek onze website
Bezichtiging
Bod uitbrengen
Waardebepaling
Zoekopdracht
Alles downloaden
Zonnegrenzen bekijken
Op de kaart
Inwoners in Enschede
Cijfers voor postcodegebied 7521
- Totaal aantal inwoners
- 158255 inwoners
- Mannen
- 51%
- Vrouwen
- 49%
Inwoners in Enschede
Cijfers voor postcodegebied 7521
- tot 15 jaar
- 14%
- 15 tot 25 jaar
- 16%
- 25 tot 35 jaar
- 25%
- 45 tot 65 jaar
- 27%
- 65 en ouder
- 18%
Huishoudens in Enschede
Cijfers voor postcodegebied 7521
- Eenpersoons zonder kinderen
- 51%
- Meerpersoons zonder kinderen
- 23%
- Huishoudens zonder kinderen
- 74%
Huishoudens in Enschede
Cijfers voor postcodegebied 7521
- Huishoudens met één kind
- 8%
- Huishoudens met meerdere kinderen
- 17%
- Huishoudens met kinderen
- 25%
Woningen in Enschede
Cijfers voor postcodegebied 7521
- Woningen voor 1945
- 34%
- Woningen tussen 1945 en 1965
- 33%
- Woningen tussen 1965 en 1975
- 19%
- Woningen tussen 1975 en 1985
- 4%
- Woningen tussen 1985 en 1995
- 2%
Woningen in Enschede
Cijfers voor postcodegebied 7521
- Woningen tussen 1995 en 2005
- 4%
- Woningen tussen 2005 en 2015
- 4%
- Woningen na 2015
- 1%
- Huurwoningen
- 60%
- Koopwoningen
- 40%
Overige in Enschede
Cijfers voor postcodegebied 7521
- Gemiddelde WOZ waarde
- € 159.000,-
- Personen onder de 65 met uitkering
- 14%
Overige in Enschede
Cijfers voor postcodegebied 7521
- Adressen per km²
- 1593
- Stedelijkheid (schaal 1 op 5)
- 80%
Korte feiten over Enschede
Enschede is een stad en gemeente in Twente, in het oosten van de Nederlandse provincie Overijssel.
Kemps Makelaarshuis de makelaar van nu!
De moderne, no-nonsense makelaar van Twente. Waar persoonlijke aandacht centraal staat in onze dagelijkse dienstverlening. Het aan- en/of verkopen van een woning is een spannende gebeurtenis. Dan is het fijn wanneer er een vriend “Homi makelaar” naast je staat die zich hard maakt voor jouw persoonlijk belangen! Dagelijks zijn wij succesvol actief op de Twentse woningmarkt. Je kunt ons o.a. vinden in de plaatsen Enschede, Hengelo & Haaksbergen.
Ieder persoon en elke woning is uniek, daarom hanteren wij altijd een op maat gemaakt plan dat perfect aansluit op jouw woonwensen. Door middel van innovatie en geavanceerde technologie streven wij naar een stressvrije en plezierige ervaring voor onze klanten. Door middel van onze op data gebaseerde strategie bereiken we een uitgebreider publiek dan anderen, en dit gebeurt altijd met een persoonlijke en doelgerichte aanpak, zowel online als offline. Als je vragen hebt over de vastgoedmarkt of wil je meer weten over jouw woning, staan wij altijd klaar om je te helpen.
Nieuwste reviews
-
Robert
Marco Kemps van Homi makelaars Is een nette professionele en een gedreven makelaar die alles goed Geregeld heeft , wat hij zegt maakt hij wa...
-
Vittorina Verbeek
Wij hebben onlangs het huis van onze ouders verkocht en dat was niet altijd een eenvoudig proces. Wat voor ons het verschil heeft gemaakt, i...
-
Jense Cels
Als je op zoek bent naar een makelaar die echt de tijd voor je neemt, dan kan ik Marco Kemps van harte aanbevelen. Wat ons vooral opviel, is...